DH 550
by Dudley Dix and Philip Harvey
The DH550 cruising catamaran started life as a design commission received by Dudley Dix from catamaran builder Philip Harvey.
Phil was cruising with his family and wanted to move up to a larger boat. Dudley had too much work in progress to be able to
take on the new design so the two agreed a cooperative basis to do the design between them. Dudley brings 30 years of design
and boatbuilding experience into the project and Phil brings 15 years of professional boatbuilding and catamaran experience.
Between them they have produced a cruising catamaran with striking good looks and high-performance potential.
Construction is a further development of the radius chine plywood concepts that Dudley has drawn since the early 1990’s. These
concepts started with the monohull Didi 38 “Black Cat”, which he built to test the construction method then sailed across the
South Atlantic three times. Since then he has developed other performance oriented monohull designs of similar concept, from 21
to 42ft LOA. As of October 2006, nearly 300 boats to this method are in build or sailing worldwide.
As successful as the radius chine plywood monohull designs have been, this project has shown that this construction method is
even better for catamaran hulls than it is for monohulls.
This is a big and powerful boat and it is intended for cruising the oceans of the world.
To take on that role, it has 1m (39”)
bridgedeck clearance to minimize slamming in big seas. The hull/bridgedeck junction has received particular attention to ensure
that the loads imposed by rig and ocean are properly transmitted and shared between them. Carbon composite chainplates are laminated
to the inside and outside of the hull and spread the rigging loads down into the hull skin, longitudinals and bulkheads. The mast
stands on top of a major transverse bulkhead that is configured as an I-beam to spread the compression load laterally into the hulls
and is tied into longitudinal bulkheads that spread the load fore/aft into the bridgedeck structure.
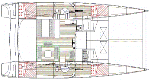
The interior arrangement is modeled around 2 cabins in each hull, sharing a common heads/shower area that separates them for privacy.
That makes this boat suitable for 4-couple bare-boat charter work. An alternative hull accommodation arrangement will also be offered,
with a larger owner’s cabin in one of the hulls.
Bridgedeck accommodation is spacious, with separate galley, steering, navigation, dining and relaxation areas. Forward of the bridgedeck
accommodation is a small forward working cockpit that gives access to the base of the mast and all control lines. Aft there is a large
relaxation cockpit protected by the roof overhang, with easy access to transom steps down to swim/boarding platforms and a full-width
aft bridgedeck platform.
The underbody is clean and easily-driven, with long waterline for high performance. A vertical daggerboard in each hull gives windward
ability along with the ability to enter shallow water. The shaft-mounted rudders extend to below the propellers to protect them from damage.
The rig has an aluminium mast with double diamonds to keep it straight. It is held by upper and lower single shrouds that are angled
well aft to properly support it in all wind directions. Headsails are sheeted to the forward bridgedeck and the mainsail is sheeted to
the cabin roof over the aft bulkhead.
The DH550 is a boat that offers comfortable fast cruising. It is already proving popular, with four sold and in-build before the first
boat was launched. This will be the first in a series of radius chine plywood catamaran designs that will be developed by Dudley Dix
and Philip Harvey.
Characteristics
LOA 16.75m [55' 0"]
LWL 15.70m [51' 6"]
Beam overall 8.70m [28'5"]
Hull beam 2.00m [6' 7"]
Draft 0.75/2.19m [2'6"/7'2"]
Displ 12500kg [27550lb]
Sail Area (triangles) 127.7sq.m [1374sq.ft]
Powering 2 x 50hp diesel
I = 17.84m [58' 6"]
J = 5.96m [19' 6"]
P = 18.40m [60' 3"]
E = 6.10m [20' 0"]
More Info:
To view more pictures click the link below and for information contact us
more pictures